Автоматический угольный котел 250 кВт в Томске

  • Эффективная работа на каменном и буром угле размерами кусков до 10 см
  • Емкий топливный бункер
  • До 3 – 7 суток работы на одной загрузке бункера
  • Шнек с функцией автореверса
  • Работает без дымососа
  • Умная и надежная автоматика промышленного исполнения
  • Котлы могут отправлять отчёты о своём состоянии и управляться дистанционно через GSM-модуль (опционно)
Цена с НДС:
827 000 рублей
Цена с НДС на автоматический угольный котел 250 кВт с доставкой в
от 827 000 рублей
Условия в
В наличии на складе
Доставка ТК по России и Казахстану
Безналичный расчет
Есть в наличии
Можно купить в лизинг
Угольный автоматический котел 0.25 МВт
Автоматический угольный котел 0.25 МВт
Котел 0.25 МВт на угле автоматический
Автоматический котел 0.25 МВт на угле
Котел угольный 0.25 МВт с автоматической подачей
Угольный котел 0.25 МВт с автоматической подачей
Угольный автоматический котел 0.25 МВт
Котел 0.25 МВт на угле автоматический
Котел угольный 0.25 МВт с автоматической подачей
Видеообзор
Вид топки Ретортная, Автоматическая
Максимальная тепловая мощность 250 кВт
Топливо Твердое, Уголь
Отапливаемая площадь от 1500 до 2600 м²
Технические
характеристики
Описание
товара
Комплект
поставки
Дополнительное
оборудование
Монтаж и схемы
подключения
Сертификаты
и гарантии
Подбор
котла

Технические характеристики автоматического угольного котла 250 кВт

Вид Водогрейный
Тип отопительного котла Твердотопливный
Бренд HEATEXPERT
Тип Котел КВа КБ
Вид топки Ретортная, Автоматическая
Максимальная тепловая мощность 0.25 МВт
Максимальная тепловая мощность 250 кВт
Максимальная тепловая мощность 0.21 Гкал
Диапазон регулирования мощности 30-100 %
Диапазон регулирования мощности 70-250 кВт
Топливо Твердое, Уголь
Низшая теплота сгорания проектного топлива 5230 кКал/кг
Влажность топлива 30 %
Фракционный состав топлива от 15 мм до 50 мм (семечко, мелкий орех), допускается применение кусков до 100 мм до 10% мм
КПД котла на УГЛЕ 80 %
Расход УГЛЯ среднечасовой за отопительный сезон 30 кг/ч
Расход УГЛЯ при максимальной нагрузке котла 53 кг/ч
Расход условного топлива 40 кг/ч
Срок автономной работы при минимальной нагрузке до 3 суток (72 часа)
Срок автономной работы в среднем за отопительный сезон 1,5 суток (36 часов)
Срок автономной работы при максимальной нагрузке котла 20 часов
Минимальная температура воды на входе в котел 55 °C
Максимальная температура воды на выходе из котла 115 °C
Давление воды, не более 0.15-0.3 (1.5-3) МПа (кгс/см²)
Номинальный расход теплоносителя 9 м³/ч
Расход теплоносителя через котел min-max 7.5-11.5 м³/ч
Гидравлическое сопротивление при номинальном расходе не более 0.07 (0.7) МПа (кгс/cм²)
Аэродинамическое сопротивление 25 (2,5) Па (мм. вод. ст.)
Разряжение в топочной камере 20-40 (2-4) Па (мм. вод. ст.)
Объем уходящих газов 1000 м³/ч
Температура уходящих газов, не более 250 °C
Тяга Естественная
Водяной объем котла 106 л
Объем топочной камеры 0.49 м³
Объем бункера 0.8 м³
Объем штатного бункера (насыпная плотность 1300 кг/м³) 1040 кг
Присоединительные размеры по водяному тракту 50 Ду
Присоединительные размеры газохода уходящих газов, ширина*высота / сечение Ду 250/0.05 мм/м²
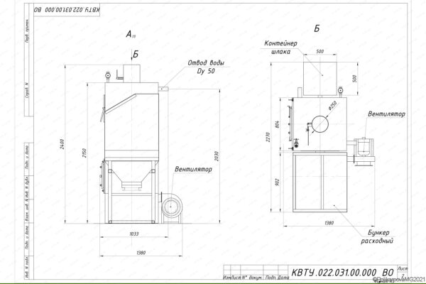
Габаритные размеры блока, длина*ширина*высота 1050х960х1970 мм
Габаритные размеры установки, длина*ширина*высота 1380х2270х2400 мм
Масса 1100 кг
Конструкция котла водотрубная
Количество контуров Одноконтурный
Размещение Напольный
Тип камеры сгорания Закрытый
Управление Электронное
Принцип работы твердотопливного котла Классический
Энергонезависимый Нет
Тип питания Трехфазное
Встроенный циркуляционный насос Нет
Встроенный расширительный бак Нет
Марка HeatExpert
Отапливаемая площадь от 1500 до 2600 м²
Отапливаемый объем от 5000 до 8000 м³
Энергоэффективность Высокая
Чертеж автоматического котла на угле 0.25 МВт
Чертеж автоматического угольного котла 0.25 МВт
Автоматический котел на угле 0.25 МВт чертеж
Автоматический угольный котел 0.25 МВт чертеж

Котел автоматический 250 кВт в Томске

Автоматический котел угольный 250 кВт работает с естественной тягой, без дымососа, устанавливается в котельной для отопления больших помещений, коттеджей, загородных домов, складских, ремонтных баз, СТО, теплиц и офисных зданий площадью 1500 – 2600 м2. Температура нагрева воды 115 °С, рабочее давление 0.1 – 0.3 МПа.

Российский автоматический твердотопливный котел 250 кВт способен длительное время работать без вашего участия. Автоматика позволяет настраивать и поддерживать комфортную температуру, дозируя подачу топлива, а GSM модуль полностью контролирует работу котла и оповещает вас о любых сбоях в работе.

Бункер котла на угле автоматического

Все обслуживание котлоагрегата сводится к добавлению угля в бункер один раз в 3 – 7 дней (в зависимости от погодных условий и требуемой температуры) и периодического очищения бункера шлака.

Стальные алтайские автоматические котлы отопления 250 кВт работают на каменном и буром угле размерами кусков от семечки до 100 мм. Использование как сортового, так и не сортового угля различных фракций, освобождают вас от предварительной подготовки топлива и сложностей с его поиском.

Емкий бункер

Водогрейный отопительный автоматический котел на угле 250 кВт изготавливается с бункером, вместительностью не менее 400 кг. Такого количества топлива хватает до 3 - 7 дней работы. Вам достаточно выставить нужную температуру в помещении и раз в неделю досыпать уголь в бункер. Конструкция бункера исключает зависание топлива. Устанавливается справа или слева от котлоагрегата.

Горелка ретортная автоматического угольного котла

Шнек с системой от заклинивания

Бункер оснащен шнеком с системой защиты от заклинивания. При заклинивании шнека из-за случайно попавшего угля более крупного размера, наш автоматический котел на твердом топливе 250 кВт включает обратный ход и затем снова подает топливо на реторту. Агрегат без функции реверсивного движения останавливает свою работу и без вашего вмешательства не возобновляет движение. Шнек производит подачу топлива прямо на ретортную горелку в камере сгорания.

Особенности топки

Ретортная горелка устанавливается в середине топочной камеры. Такая конструкция равномерно нагревает стенки автономного трубного котла, предотвращая перегрев и увеличивая путь к бункеру, снижая вероятность возгорания. Полная безопасность работы обеспечивается автономной системой пожаротушения, срабатывающей даже при сбоях с электроэнергией.

Теплообменник с максимальной теплоотдачей

Производственный котел 250 кВт с автоматической подачей угля – газоплотный, водотрубный. Вода поступает в трубы котельного блока, расположенные в шахматном порядке. Шахматное расположение позволяет максимально омывать поверхности нагрева и отдавать тепло теплоносителю. Расположение труб в шахматном порядке исключает забивание осаждения, снижает вероятность забивания трубных пучков конвективной части и обеспечивает компактность агрегата. Высокая скорость воды в трубах сдерживает процессы отложения накипи в поверхностях нагрева и исключает перегрев.

Автоматическое золоудаление
Золоудаление автоматическое

Чтобы очистить шнековый твердотопливный угольный котел 250 кВт с автоматической подачей топлива не требуется его останавливать и самостоятельно выгребать золу. Встроенное автоматическое золоудаление сбрасывает образующиеся золу и шлак в специальный бункер-накопитель, находящийся рядом с котлом. Достаточно периодически его очищать.

Умная автоматика

Промышленный твердотопливный котел автомат для угля 250 кВт прост в обслуживании и управлении. Автоматика снимает с вас массу обязанностей и облегчает обслуживание - доставляет топливо из бункера в топку, регулирует подачу воздуха, поддерживает заданную температуру, управляет насосами, отвечает за безопасность. Для этого на щите устанавливаются необходимые настройки, которые можно тонко регулировать для более экономичного расхода топлива.

Монтаж и комплектация

Отечественный автоматический угольный котел 250 кВт поставляется блоками максимальной заводской готовности, цена включает - котельный блок, топку с ретортой, бункер с шнеком, вентилятор поддува, контейнер шлака, вентили, предохранительные клапаны, термометры, манометры, трехходовые краны, паспорт и инструкцию по эксплуатации.

Агрегат собирается в котельной на специально подготовленную ровную поверхность и закрепляется анкерными болтами. Далее подсоединяется по воде, устанавливается запорная арматура на подводящем и отводящем трубопроводе, устанавливаются предохранительные клапаны, дренажи, воздушники и контрольно измерительные приборы. В воздушный короб по месту врезается вентилятор, монтируется газоход.

GSM модуль

GSM модуль - контролирует состояние котла, оповещает о любых сбоях в работе. Является дополнительной опцией, поставляется по запросу.

Купить автоматический угольный котел 250 кВт

Для того, что бы купить автоматический твердотопливный котел 250 кВт в Томске вы можете оформить заявку в отделе сбыта по телефону 8-800-700-06-43, либо оформить заявку он-лайн. Инженеры-консультанты помогут выбрать подходящие модели и котельно-вспомогательное оборудование, рассчитают стоимость доставки до вашего региона и населенного пункта. Транспортирование котлоагрегатов может осуществляться транспортными компаниями, автомобильным транспортом, железнодорожным и речным видами транспорта.

Комплект поставки автоматического угольного котла 250 кВт

Цена водогрейного автоматического угольного котла 250 кВт включает в себя запорную арматуру и КИП в пределах котла, вентилятор поддува и предохранительные клапаны. Ниже приведена подробная информация.

Дополнительное оборудование автоматического угольного котла 250 кВт

Для эффективной и надежной работы автоматического угольного котла 250 кВт вам потребуется дополнительное оборудование - автоматика, дымосос, золоуловитель, насос сетевой и подпиточный, газоходы и переходники для газового тракта, дымовая труба. Мы предлагаем рассмотреть типовые варианты комплектации. В случае если у вас на объекте имеется насосное и тягодутьевое оборудование, мы можем проверить совместимость автоматического угольного котла 250 кВт нашего производства и вашего оборудования. Можем изготовить нестандартные узлы для выполнения быстрого монтажа котла - газоходы и узлы обвязки. Типовую схему монтажа котла вы можете посмотреть во вкладке схемы подключения.

Автоматика котлов с ретортной горелкой
Автоматика угольного котла с ретортной горелкой
340000 руб. с НДС

Полностью автоматическое регулирование работы котла:

  • ручной розжиг котла;
  • автоматическое поддержание заданной температуры;
  • погодозависимое регулирование;
  • контроль уровня топлива в топливном бункере (при использовании пеллет);
  • автоматическое пожаротушение, в случае возгорания в шнеке;
  • возможно подключение удаленного контроля параметров работы котла посредством GSM, Ethernet, WiFi модуля (доп опция)
TD насос
Насос TD32-33G2 (3 кВт)
124000 руб. с НДС

Монтаж и схемы подключения автоматического угольного котла 250 кВт

Водогрейный стальной отопительный автоматический угольный котел 250 кВт, предназначен для получения горячей воды номинальной температурой на выходе из котла от 95 до 115 °С рабочим давлением до 0,3 (3,0) МПа (кгс/см), используемой в системах централизованного теплоснабжения на нужды отопления, горячего водоснабжения. Устанавливается в производственных, промышленных и отопительных котельных.

Монтаж и подключение автоматического угольного котла 250 кВт

План расстановки оборудования в котельной

Для правильного подключения автоматического угольного котла 250 кВт в котельной необходимо оставить проемы для обслуживания оборудования во время эксплуатации. Эти расстояния рекомендованы СНИП II-35-76. На данной схеме представлены их размеры. Кроме того мы составили примерный план, как можно произвести расположение подключение оборудования, а также указали перечень минимально необходимого вспомогательного оборудования для работы котла. К вспомогательному оборудованию при работе котла относятся - щит управления котлом, насос циркуляционный, насос подпиточной воды, бак запаса воды, расширительный мембранный бак, дымовая труба и дымосос, золоуловитель (по желанию).
В случае если подпиточная вода не соответствует по своим характеристикам требованиям к питательной воде, необходимо предусмотреть систему водоподготовки котловой воды.
Для котельных 1 категории, являющиеся единственным источником тепла системы теплоснабжения и обеспечивающие потребителей первой категории, не имеющих индивидуальных резервных источников тепла, необходимо предусмотреть полное резервирование оборудования - котлов, насосов, ТДМ. Пунктиром обозначено оборудование для резервирования.
Для котельных 2 категории, включающие в себя промышленные и производственные котельные резервирование нужно предусматривать по необходимости.

Тепловая схема подключения котла

Схема тепловая котла

Образец тепловой схемы подключения оборудования в котельной приведен на данной схеме. При эксплуатации очень важно грамотно осуществить подключение оборудования, установить все контрольно измерительные приборы, для контроля параметров работы котельной и запорную арматуру для оперативного переключения потока теплоносителя при плановой или аварийной остановке оборудования. Данную схему можно использовать как пример для разработки под свой объект или заказать у нас разработку индивидуальной схемы для вашей котельной.

Сертификаты и гарантии автоматического угольного котла 250 кВт

Водогрейный автоматический угольный котел 250 кВт имеет гарантийный срок 24 месяца. Срок работы при соблюдении правил монтажа и эксплуатации оборудования 10 лет.

Водогрейные котлы сертификат
Сертификат на водогрейные котлы
Сертификат на водогрейные котлы на газе и жидком топливе
Сертификат на водогрейные котлы на газе и жидком топливе

Подберите мощность котла для вашего объекта

Тип здания
Регион
Населенный пункт
Наружный объем здания
3)
Отапливаемый подвал
Объем подвала
3)

Отзывы о продукции

Другая похожая продукция

КВр котел 0.25 МВт
Котел КВр 0.25
Максимальная тепловая мощность, МВт 0.25
Топливо Твердое, Уголь
Вид топки Ручная, Колосники
Отапливаемая площадь, м² от 1500 до 2600
372 000 ₽
Котел на опилках 0.25 МВт автоматический
Котел 0.25 МВт на опилках
Максимальная тепловая мощность, МВт 0.25
Топливо Опилки, Твердое
Вид топки Вихревая, Автоматическая
Отапливаемая площадь, м² от 1500 до 2600
1 378 000 ₽
Котел на отходах древесных
Котел на древесных отходах 0.25 МВт
Максимальная тепловая мощность, МВт 0.25
Топливо Твердое, Дрова, Древесные отходы естественной влажности
Вид топки Ручная, подовая
Отапливаемая площадь, м² от 1500 до 2600
488 000 ₽
Угольный автоматический котел 0.15 МВт
Автоматический угольный котел 0.15 МВт
Максимальная тепловая мощность, МВт 0.15
Топливо Твердое, Уголь
Вид топки Ретортная, Автоматическая
Отапливаемая площадь, м² от 860 до 1600
794 000 ₽
Угольный автоматический котел 0.3 МВт
Автоматический угольный котел 0.3 МВт
Максимальная тепловая мощность, МВт 0.3
Топливо Твердое, Уголь
Вид топки Ретортная, Автоматическая
Отапливаемая площадь, м² от 2300 до 3300
857 000 ₽